ДОМА ИЗ ПОЛИСТИРОЛБЕТОНА В САНКТ-ПЕТЕРБУРГЕ
СТРОИТЕЛЬНАЯ КОМПАНИЯ "АРЕАЛ-НЕВА"
без выходных с 10:00 до 19:00
ПРОЕКТ "ВИЛЬТЕН"
ЗАДАЙТЕ ВОПРОСЫ ПО ТЕЛЕФОНУ:
БЕЗ ВЫХОДНЫХ С 8:00 ДО 22:00
Представляем вам проект дома «Вильтен». Наша компания «Ареал-Нева» строит такие дома в Санкт-Петербурге и Ленинградской области. Этот проект идеально подходит для гостевого дома в туристическом комплексе или семейного отдыха.

Превратите свою жизнь в сказку с этим великолепным загородным домом!

Дом имеет размеры 10×9 метров и площадь 81 м2.
ТЕПЛЫЕ ДОМА ИЗ ПОЛИСТИРОЛБЕТОНА
хит
продаж
Представляем вам проект дома «Вильтен». Наша компания «Ареал-Нева» строит такие дома в Санкт-Петербурге и Ленинградской области. Этот проект идеально подходит для гостевого дома в туристическом комплексе или семейного отдыха.

Превратите свою жизнь в сказку с этим великолепным загородным домом!

Дом одноэтажный с двускатной крышей, изготовлен из современных и надежных материалов.
Дом имеет размеры 10×9 метров и площадь 81 м2.

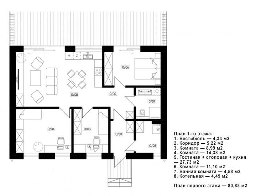
Внутренняя планировка включает в себя гостиную комнату, три комнаты с просторными гардеробными, а также ванную комнату.

Чтобы узнать больше о строительстве такого дома, свяжитесь с нами по телефону +7 (812)984-70-01
ОПИСАНИЕ ПРОЕКТА
ПЛАНЫ ЭТАЖЕЙ
ПЛАН 1 ЭТАЖА
Фундамент:

Монолитная плита 250мм двойное армирование

Песчаное основание 300 мм

Щебенистое основание 100 мм

Разводка инженерных коммуникаций под плитой согласно проектных решений.

Несущие наружные стены:
Полистиролбетон крупноформатные панели 300мм, не требующие утепления или защиты от воды. Армопояс монолитный в готовую полистиролбетонную опалубку. Закладные в несущих стенах (инженерные коммуникации).

Внутренние стены:
Внутренние не несущие стены газобетон 150 мм.

Окна:
Металлопластиковый профиль RЕНАU ВLIТZ или аналогичное по качеству, фурнитура Rоtо Nt или аналог по качеству.

Кровля:
Перекрестное утепление каменной ватой Rockwool 300 мм.
Огнебио защита силового каркаса. Стропильная система из леса камерной сушки строганного калиброванного.
Покрытие кровли МЧ или профлист профиль СТ15 толщина 0,5.

Фасадная и внутренняя отделка по индивидуальному согласованию

По дополнительному запросу в готовые проекты могут быть внесены изменения.
КОМПЛЕКТАЦИЯ
ЗВОНИТЕ ЕЖЕДНЕВНО С 8:00 ДО 22:00
ИЛИ В ЧАТЕ:
ЗАДАЙТЕ ВОПРОСЫ ПО ТЕЛЕФОНУ
ИННОВАЦИОННАЯ ТЕХНОЛОГИЯ
Полистиролбетон — это строительный материал, который не требует дополнительного утепления стен снаружи. В бетонный раствор добавляют шарики полистирола, которые обеспечивают материалу высокие теплоизоляционные свойства и не теряет несущей способности.

Полистиролбетон был разработан в США в середине XX века. С тех пор он стал популярным во многих странах мира и активно применяется в строительстве жилых и коммерческих зданий, а также инфраструктурных объектов.
СОБСТВЕННОЕ ПРОИЗВОДСТВО
КОНСТРУКТИВНЫХ ЭЛЕМЕНТОВ
Все несущие элементы здания изготавливаются на заводе в специально созданных особых условиях, выдерживается необходимая температура, влажность воздуха, давление и другие факторы для идеального застывания смеси точно по ГОСТ.

Готовый домокомплект получается таким же прочным как типовой бетон, при этом является очень теплым и в два раза более легким, что позволяет существенно экономить средства на подготовке грунтов, фундаменте и логистике.
ГОТОВЫЙ ДОМОКОМПЛЕКТ
ДОСТАВЛЯЕТСЯ НА УЧАСТОК
Все конструктивные элементы дома доставляются и сразу же монтируются на фундамент с автокранов без разгрузки плит на участке. Заказчик полностью избегает длительного и грязного этапа стройки у себя на земле.

За счет легкости полистиролбетонных плит в сравнении с простым бетоном, стоимость доставки элементов на объект сокращается почти вдвое.

ДОМОКОМПЛЕКТ СОБИРАЕТСЯ
НА УЧАСТКЕ ЗА 1 ДЕНЬ
Специально обученные бригады "Ареал-Нева" во главе с прорабом и техническим надзором собирают домокомплект на участке за один день. Еще один день монтируются окна и двери. Соединяются заранее подготовленные коммуникации.

Заказчик получает закрытый теплый контур с окнами, дверями, гидроизолированной крышей, электрикой и подключенными коммуникациями уже через 5 дней.
ЗВОНИТЕ ЕЖЕДНЕВНО С 8:00 ДО 22:00
WHATSAPP:
ОТДЕЛ ПРОДАЖ В САНКТ-ПЕТЕРБУРГЕ
АККРЕДИТОВАНЫ
ВО ВСЕХ БАНКАХ РФ
Компания "Ареал Нева" аккредитована во всех ведущих банках Российской Федерации.
Уже сейчас у компании готовы эскроу счета, работа с которыми станет обязательной со следующего года.
Любой из наших проектов можно построить в ипотеку даже без первого взноса.
ЗВОНИТЕ ЕЖЕДНЕВНО С 8:00 ДО 22:00
ИЛИ В ЧАТЕ:
ЗАДАЙТЕ ВОПРОСЫ ПО ИПОТЕКЕ
ПРОИЗВОДСТВО
И ОБЪЕКТЫ
ЗВОНИТЕ ЕЖЕДНЕВНО С 8:00 ДО 22:00
WHATSAPP:
ОТДЕЛ ПРОДАЖ В САНКТ-ПЕТЕРБУРГЕ
КАРТА ОБЪЕКТОВ
Офис компании:
e-mail:
198206, СПБ, ул Пионерстроя, д. 23 литера Б офис 4-Н.
Телефон для связи:
СТРОИТЕЛЬНАЯ КОМПАНИЯ "АРЕАЛ-НЕВА"