ДОМА ИЗ ПОЛИСТИРОЛБЕТОНА В САНКТ-ПЕТЕРБУРГЕ
СТРОИТЕЛЬНАЯ КОМПАНИЯ "АРЕАЛ-НЕВА"
без выходных с 10:00 до 19:00
ПРОЕКТ "АЛЬТ-БОРК"
ЗАДАЙТЕ ВОПРОСЫ ПО ТЕЛЕФОНУ:
БЕЗ ВЫХОДНЫХ С 8:00 ДО 22:00
Представляем проект дома «Альт-Борк», который может построить наша компания «Ареал-Нева» в Санкт-Петербурге и Ленинградской области. Этот проект — лучший вариант для тех, кто ценит гибкость и свободу в организации своего времени и режима дня.

Откройте дверь в мир роскоши и уединения с нашим загородным домом.

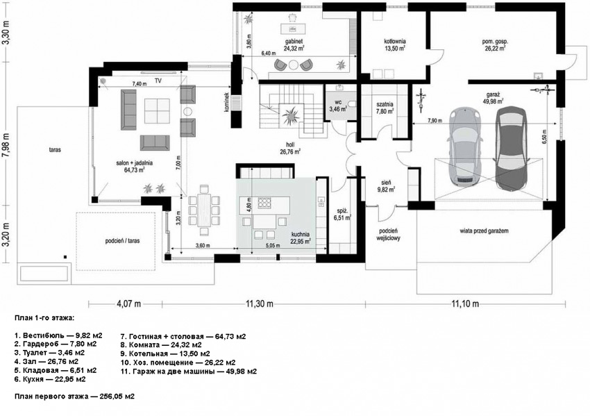
Размеры дома составляют 26х14 метров, а его площадь — 442 м2, что создает максимально комфортабельные условия для проживания.
ТЕПЛЫЕ ДОМА ИЗ ПОЛИСТИРОЛБЕТОНА
Дом имеет 2 полноценных этажа и плоскую крышу, которая позволяет установить окна на высоком уровне и состоит из водонепроницаемых материалов.

Элементы внутренней планировки дома содержат 5 спален, которые позволят комфортно разместить семью и ваших гостей, 3 ванных, отдельный туалет, рабочий кабинет, холл с мезонином, кухню и гостиную.

Дом идеально подходит для тех кто высоко ценит свой комфорт, отдых и личное пространство. Практичность и роскошь слились в этом проекте.

Заказать строительство такого дома от компании «Ареал-Нева» вы можете по телефону +7 (812)984-70-01
ОПИСАНИЕ ПРОЕКТА
ПЛАНЫ ЭТАЖЕЙ
ПЛАН 1 ЭТАЖА
ПЛАН 2 ЭТАЖА
Фундамент:

Монолитная плита 250мм двойное армирование

Песчаное основание 300 мм

Щебенистое основание 100 мм

Разводка инженерных коммуникаций под плитой согласно проектных решений.

Несущие наружные стены:
Полистиролбетон крупноформатные панели 300мм, не требующие утепления или защиты от воды. Армопояс монолитный в готовую полистиролбетонную опалубку. Закладные в несущих стенах (инженерные коммуникации).

Внутренние стены:
Внутренние не несущие стены газобетон 150 мм.

Окна:
Металлопластиковый профиль RЕНАU ВLIТZ или аналогичное по качеству, фурнитура Rоtо Nt или аналог по качеству.

Кровля:
Перекрытие монолитное 180 мм. с выполненной разуклонкой керамзитобетоном. Утепление ЭППС 250 мм. Гидроизоляционный слой из наплавляемой кровли перекрестное нанесение в 4 слоя.

Фасадная и внутренняя отделка по индивидуальному согласованию

По дополнительному запросу в готовые проекты могут быть внесены изменения.
КОМПЛЕКТАЦИЯ
ФАСАДЫ ДОМА
Передний фасад
Задний фасад
Фасад слева
Фасад справа
ЗВОНИТЕ ЕЖЕДНЕВНО С 8:00 ДО 22:00
ИЛИ В ЧАТЕ:
ЗАДАЙТЕ ВОПРОСЫ ПО ТЕЛЕФОНУ
ИННОВАЦИОННАЯ ТЕХНОЛОГИЯ
Полистиролбетон — это строительный материал, который не требует дополнительного утепления стен снаружи. В бетонный раствор добавляют шарики полистирола, которые обеспечивают материалу высокие теплоизоляционные свойства и не теряет несущей способности.

Полистиролбетон был разработан в США в середине XX века. С тех пор он стал популярным во многих странах мира и активно применяется в строительстве жилых и коммерческих зданий, а также инфраструктурных объектов.
СОБСТВЕННОЕ ПРОИЗВОДСТВО
КОНСТРУКТИВНЫХ ЭЛЕМЕНТОВ
Все несущие элементы здания изготавливаются на заводе в специально созданных особых условиях, выдерживается необходимая температура, влажность воздуха, давление и другие факторы для идеального застывания смеси точно по ГОСТ.

Готовый домокомплект получается таким же прочным как типовой бетон, при этом является очень теплым и в два раза более легким, что позволяет существенно экономить средства на подготовке грунтов, фундаменте и логистике.
ГОТОВЫЙ ДОМОКОМПЛЕКТ
ДОСТАВЛЯЕТСЯ НА УЧАСТОК
Все конструктивные элементы дома доставляются и сразу же монтируются на фундамент с автокранов без разгрузки плит на участке. Заказчик полностью избегает длительного и грязного этапа стройки у себя на земле.

За счет легкости полистиролбетонных плит в сравнении с простым бетоном, стоимость доставки элементов на объект сокращается почти вдвое.

ДОМОКОМПЛЕКТ СОБИРАЕТСЯ
НА УЧАСТКЕ ЗА 1 ДЕНЬ
Специально обученные бригады "Ареал-Нева" во главе с прорабом и техническим надзором собирают домокомплект на участке за один день. Еще один день монтируются окна и двери. Соединяются заранее подготовленные коммуникации.

Заказчик получает закрытый теплый контур с окнами, дверями, гидроизолированной крышей, электрикой и подключенными коммуникациями уже через 5 дней.
ЗВОНИТЕ ЕЖЕДНЕВНО С 8:00 ДО 22:00
WHATSAPP:
ОТДЕЛ ПРОДАЖ В САНКТ-ПЕТЕРБУРГЕ
АККРЕДИТОВАНЫ
ВО ВСЕХ БАНКАХ РФ
ЗВОНИТЕ ЕЖЕДНЕВНО С 8:00 ДО 22:00
ИЛИ В ЧАТЕ:
ЗАДАЙТЕ ВОПРОСЫ ПО ТЕЛЕФОНУ
ПРОИЗВОДСТВО
И ОБЪЕКТЫ
ЗВОНИТЕ ЕЖЕДНЕВНО С 8:00 ДО 22:00
WHATSAPP:
ОТДЕЛ ПРОДАЖ В САНКТ-ПЕТЕРБУРГЕ
КАРТА ОБЪЕКТОВ
Офис компании:
e-mail:
198206, СПБ, ул Пионерстроя, д. 23 литера Б офис 4-Н.
Телефон для связи:
СТРОИТЕЛЬНАЯ КОМПАНИЯ "АРЕАЛ-НЕВА"